loft簡約風格辦公室裝修設計 泰稻貿易
面積 :200平方米 / 地址 :番禺興南大道招商城市廣場 / 點擊 :1634
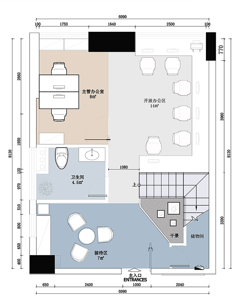
本套辦公室裝修設計方案追求效率與品質,經過精心設計,在滿足簡潔,大方,美觀辦公需要的同時,又能充分體現出企業的形象與現代感。素雅的接待區夾雜著清雅植物清香的自然風,海博裝飾設計師通過不同材質、色調及裝飾品來呈現現代景觀的意境,提升品牌形象。公共辦公區簡潔凝練,材料運用簡潔,大方,耐磨,環保的現代材料,在照明采光上使用全局照明,滿足辦公需求。沿著樓梯拾級而上,老總辦公區雅致精巧,空間色調清亮有澤,現代中式設計手法,使空間浸潤清雅美感。
- 上一案例:天健會計師事務所寫字樓裝修設計
- 下一案例:孟思羅廣州辦公室設計裝修





137-1150-4887
在線咨詢
